 
The website has been machine translated and is now undergoing editorial review.
 
                    The website has been machine translated and is now undergoing editorial review.
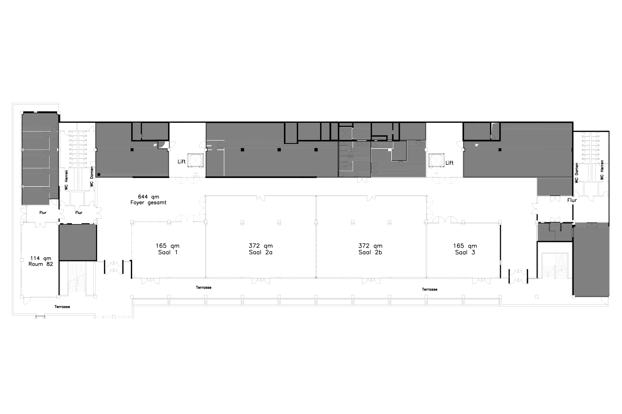
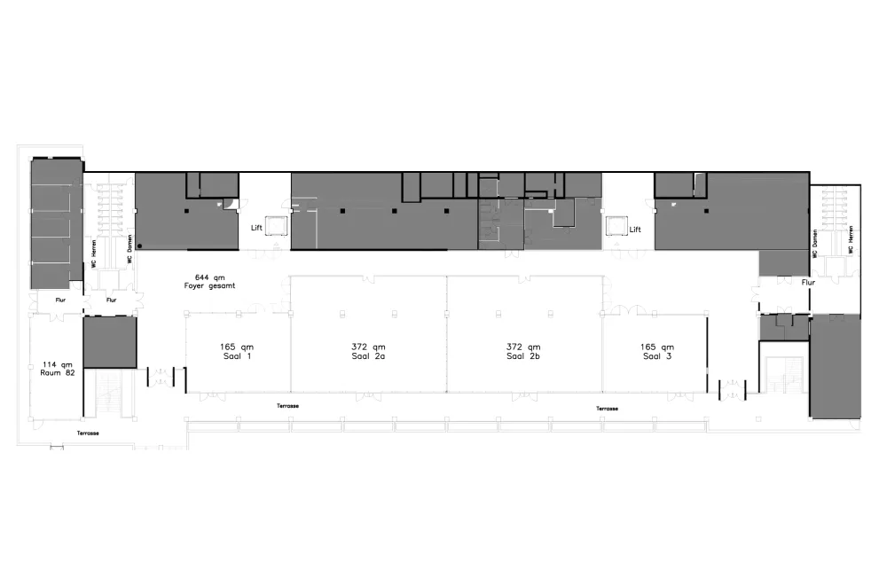
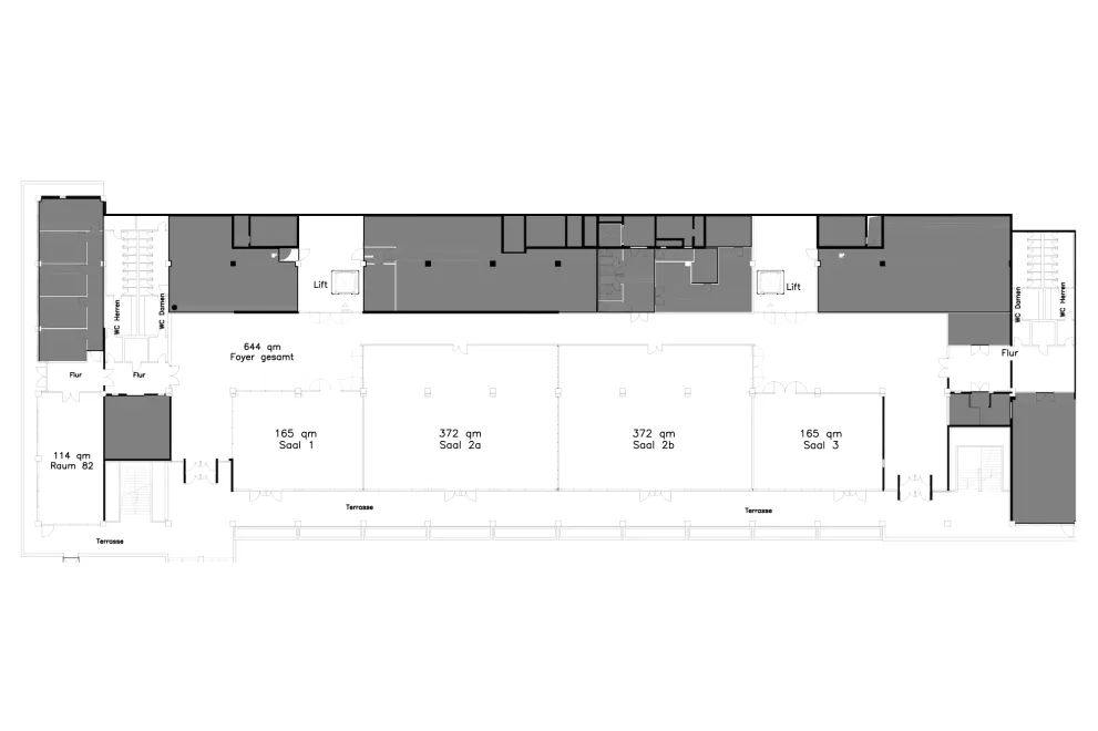
Events with a View
The Convention Center offers the best conditions for conferences, lectures and receptions – including a view over the Ruhr Valley.
 
 
                    We will be happy to advise you:
Thanks to a variable partition wall, you can either use halls2a and 2b individually or combine them into one large unit (hall 2).
| Halls | Room Area | 
|---|---|
| Hall 2a | 372 m2 | 
| Hall 2b | 372 m2 | 
| Hall 2 | 744 m2 | 
| Halls | Rows | Parliament | U-shape | Banquet | 
|---|---|---|---|---|
| Hall 2a | 216 persons | 144 persons | 70 persons | 120 persons | 
| Hall 2b | 216 persons | 144 persons | 70 persons | 120 persons | 
| Hall 2 | 468 persons | 312 persons | - | 240 persons | 
 
                    Usage fees per day, plus statutory VAT:
Image and sound technology, seating and, depending on the hall, other equipment options are already included in the above prices. Please send us an inquiry for an individual offer:
The Convention Center is located on the southern edge of the Ruhr University Bochum campus.
There is direct and barrier-free access from the Convention Center to the Mensa and the Rote Bete canteen.
From the parking garage P9 you can easily reach all rooms by elevator. Separate entrances are available for set-up and delivery.
